主页 简介 楼盘详情 户型 楼盘地点 联系我们 中/EN

康宁河湾

Canninghill Piers

楼盘全景

Canninghill Piers Integrated Living

城市综合体

Canninghill Piers Prime Location

黄金地段

Canninghill Piers Sky Club

Sky Club

Canninghill Piers Infinite Lounge Pool

无边泳池

Canninghill Piers Spacious Home

宽敞户型

最新消息 (更新于2021年11月1日)


楼盘点评


简介

由凯德置地(CLD)和城发展有限公司(CDL)联合开发的康宁河湾 (CanningHill Piers)无与伦比。一边是波光粼粼的新加坡河,还有充满活力的咖啡馆、酒吧和餐馆。在另一边,坎宁堡山的葱茏宁静提供了完美的陪衬。除了其无与伦比的位置俯瞰新加坡的两个历史遗迹,这座新的豪华住宅将成为一个地标。

由以大胆设计闻名的著名建筑公司 BIG - Bjarke Ingels Group 设计,康宁河湾 (CanningHill Piers)骄傲地矗立在克拉克码头之上。作为一个变革性的综合住宅区的一部分,餐饮,零售,酒店和服务式住宅的灵感组合-最好的生活是你的选择。


楼盘详情

楼盘名称:康宁河湾
预计交楼时间:2024年第二季度
楼盘地址:1/5 Clarke Quay
发展商:Legend Quay Pte Ltd
物业类别:公寓
产权年限:99年
户数 / 栋:696 / 2
占地面积:12,925.4 平方米
楼层:1栋24,1栋48
户型面积:待确定

户型

Canninghill Piers site plan
Canninghill Piers Block 1
Canninghill Piers Block 5
Canninghill Piers Units Legend
1 - Bedroom
1 - Bedroom + Study
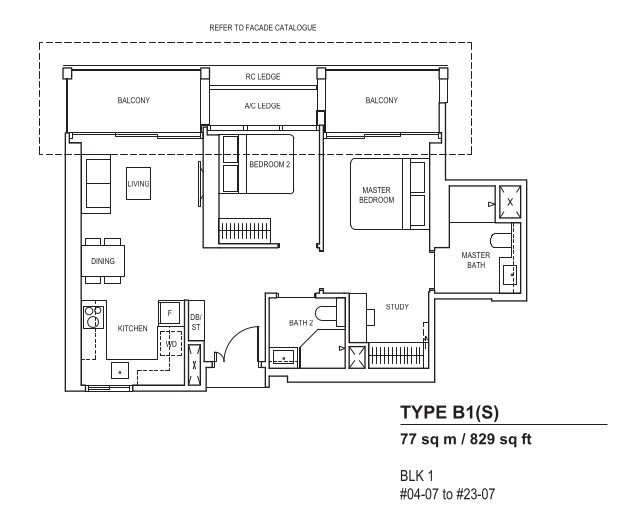
2 - Bedroom + Ensuite Study
2 - Bedroom + Study
3 - Bedroom
3 - Bedroom Premium
4 - Bedroom Premium
5 - Bedroom Premium
×


楼盘地点

地点

联系我们

新加坡
手机: +65 96796417
电邮: li.joanne.joanne@gmail.com
微信: Joanne_lizhuojia

想到示范单位了解更多信息? 解答疑问? 不要迟疑,立即用以下方式通过WhatsApp和我联系:

发送信息